|
Progetto su disegno per l'arredo di un monolocale al mare. Anche i modi di vivere la vacanza sono relativi: si possono assaporare momenti di felicità persino in spazi minimal, quali un monolocale di soli 20 mq a due passi dal mare in una delle tante località costiere della nostra bellissima e frastagliata Penisola.
Stile balneare in soli 20 mq: divano letto trasformista night & day, parete a ponte su misura, vetrocemento d'arredo per far crescere lo spazio e filtrare la luce, soluzione monoblocco per la cucina e angolo pranzo con tavolo allungabile.
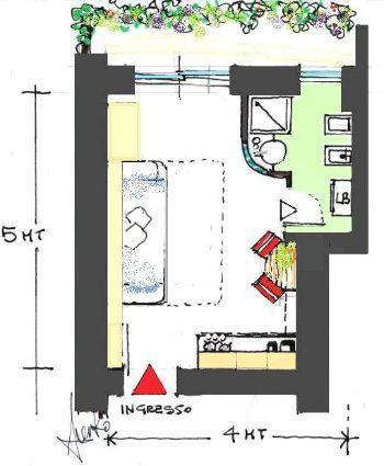
Dalla pianta disegnata a lato, notiamo un unico ambiente di ridotte dimensioni, circa 20 mq, dotato di un grazioso e comodo balcone di 4 mt lineari ove potersi rilassare, in una dimensione green.
Entrando nel miniappartamento si fa notare il divano trasformabile, del quale ho evidenziato con linea tratteggiata l'ingombro spaziale nella versione notte.
Adiacente alla porta d'ingresso, senza dare troppo nell'occhio, è attrezzato un discreto angolo cottura in chiave uniblock completo di tutto: piano cottura a tre fuochi, frigo-base, lavello a una vasca e mezzo, pensili, colapiatti e cappa.
Al di sopra della porta d'ingresso è stato posizionato lo split dell'aria condizionata. Segue una piccola, ma funzionale, zona colazione - pranzo con tavolo a mezzaluna allungabile.
Una parete curvilinea in vetromattone nasconde il piccolo vano lavanderia - bagno con lavatrice posizionata di fronte all'ingresso, lavabo rotondo che fa gioco con il vetromattone semicircolare, piatto doccia e sanitari.
Una portafinestra consente il pratico passaggio dal bagno al balcone, considerando soprattutto il dinamico uso di stendibiancheria, molto frequente dopo le assolate giornate al mare.

Dalla mia rappresentazione grafica si nota la vista prospettica globale di questo ambiente unico, dal sapore mediterraneo, con un arredo di gusto giovane e fresco, ideale per una spensierata vacanza di coppia.
La luce del sole attraversa le ampie vetrate scorrevoli della portafinestra, seppur schermata da tende a pacchetto, in leggero tessuto a righe; i raggi solari invadono tutto l'ambiente come un canale luminoso naturale.
Per il pavimento e le pareti ho utilizzato una palette all white per dilatare visivamente lo spazio e una monocottura bianco lucido, a posa diagonale, sempre per amplificare il volume, in cui si riflettono i colori degli arredi.
Un tappeto - stuoia in paglia, composto da quadrotti, delimita la zona salotto - pranzo in tutta freschezza e praticità.
L'illuminazione artificiale, posizionata al centro, è composta da tre sospensioni sferiche, di differente diametro, in bachelite color amaranto. Le sospensioni sono disposte ad altezze diverse e ciascuna con accensione indipendente.
In primo piano, il top del monoblocco in acciaio spazzolato antigraffio che ricopre, in un'unica soluzione di continuità, la zona operativa cottura - lavaggio.
Con una luminosa tonalità turchese marino ho reinterpretato il divano Anfibio di Giovannetti, modello cult del Design italiano ed esposto nei più grandi Musei d'Arte contemporanea del mondo.
Si tratta di un divano camaleontico, non da terra ad acqua come letteralmente sarebbe un anfibio, ma inteso qui come trasformista dal giorno alla notte.
Di giorno funge da spazioso sofà di ben 2,40 mt di lunghezza che, con la sua ampia profondità di un metro, diventa chaise longue longitudinale; di notte assolve in modo confortevole alla funzione di un vero letto matrimoniale.
Questa tipologia di divano extra-large può apparire una scelta bizzarra in un unico ambiente così piccolo, ma l'ho pensato allo scopo di conferire carattere e personalità alla parete; c'è sempre, infatti, un posto per tutti grazie al morbido bracciolo, che fa da avvolgente cornice al divano, per qualche ospite improvviso.
Il divano è accolto in un armadio a ponte, in frassino laccato bianco, che si sviluppa per quasi tutta la lunghezza della parete di sinistra del monolocale.
Tale armadiatura presenta una struttura a doppia profondità e composta da due colonne laterali: una adiacente alla porta d'ingresso, com'è visibile dal disegno in pianta, e una colonna terminale più profonda, accanto al balcone.
La parte centrale del ponte è costituita da due ampie ante scorrevoli. Al suo interno troviamo un'appenderia con binari telescopici, pensata per facilitare i movimenti; inferiormente è fissata una mensola - libreria, al di sotto della quale sono montati faretti a led che illuminano la zona salotto - notte.
Dal seguente particolare ingrandito si nota, accanto alla portafinestra, un piccolo contenitore con cassetti, laccato lucido in bicromia red & white e reperibile anche presso la grande distribuzione di Ikea, che assumerà il ruolo di comodino, una volta aperto il letto. A dare importanza alla parete, un quadro illuminato da un faretto inserito nel controsoffitto.
La parete curva presenta una finestra virtuale in vetromattone azzurro mare, per rendere fluido il volume, quasi a non far immaginare che al suo interno vi sia l'ambiente bagno.
Un tavolo consolle allungabile, in legno di faggio, funge da snack e da pranzo quando è tutto aperto. Per le sedie ho ridisegnato, per l'occasione, un modello dell'azienda Palma: pieghevole in legno di faggio verniciato rosso, per un uso pratico e easy.
Sulla parete è stato posizionato uno schermo TV con braccio snodabile, visibile anche dalla zona salotto - letto.
Una mensola superiore (su cui è collocata una pianta ad effetto décor) chiude, come un quadro, la piccola parete pranzo e fa da raccordo con i pensili della cucina.
Ne risulta, pertanto, un modo di abitare in vacanza giovane e disinvolto, con scelte materiche e cromatiche dal gusto estivo. La parete più lunga viene sfruttata al massimo, attrezzata su misura a tutta altezza, da pavimento a soffitto. Entro l'armadiatura a ponte fa bella mostra di sé il pratico divano night & day.
La solida trasparenza del vetrocemento d'arredo, sulla parete curvilinea, fa dilatare il volume; per l'angolo cottura è stata scelta la soluzione uniblock, la zona pranzo è funzionale grazie al tavolo a mezzaluna allungabile... e si respira già aria di vacanza.
Attraverso un attento studio dei volumi e delle planimetrie, il nostro esclusivo servizio di progettazione a mano libera permette di rivisitare gli spazi con soluzioni razionali e poliedriche, nel rispetto delle specifiche esigenze, senza rinunce dal punto di vista dell'estetica.
|
|
|
|
||||
Testata Giornalistica online registrata al Tribunale di Napoli n.19 del 30-03-2005 | ||||
|
Copyright 2026 © MADEX Editore S.r.l. |
||||