| 
 | 
L'idea di avere un bagno con due porte di accesso non piace a molti per vari motivi: per privacy, per dover manovrare due serrature quando ci si vuole chiudere dentro o per altro.
In realtà esistono alcune situazioni in cui il bagno con due porte di accesso può essere davvero comodo. Per dimostrarvelo vorrei farvi vedere alcuni progetti.
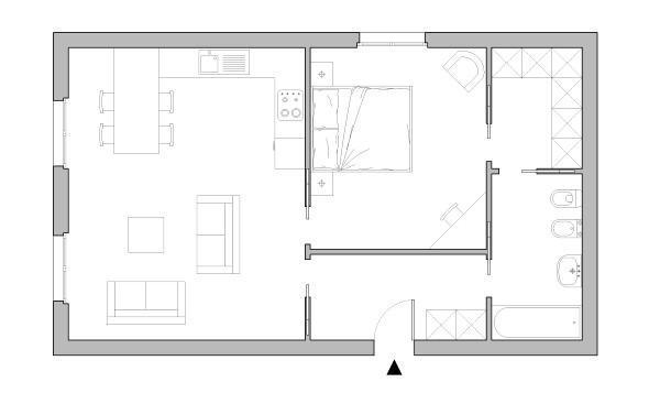
Questo è un bilocale prima dei lavori.
L'obiettivo del proprietario era ottenere una zona per i divani un po' più comoda, sfruttando se possibile la superficie del corridoio. Non era assolutamente intenzionato a stravolgere la disposizione delle stanze all'interno dell'appartamento, considerando anche il fatto che eravamo vincolati a mantenere sia bagno che cucina nelle medesime posizioni per questioni di scarichi e di aerazioni forzate (ventola per il bagno e cappa per la cucina). L'obiettivo era migliorare la situazione esistente con il minimo intervento. Segnalo anche che il proprietario desiderava rinnovare completamente il bagno sostituendo piastrelle e sanitari vetusti, cosa che ci permetteva di modificare, se necessario, la posizione di qualche sanitario.
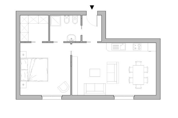
Ecco come è diventato il bilocale dopo i lavori.
Abbiamo sottratto superficie all'ingresso per cederla alla zona del soggiorno, dove ora possono sedersi comodamente sui divani 4 persone. Resta comunque una zona di ingresso, vista la necessità dal punto di vista normativo-igienico di creare un antibagno tra zona giorno e bagno.
Abbiamo poi optato per una doppia porta di accesso al bagno: si può entrare in bagno direttamente dalla camera da letto o in alternativa dalla zona giorno passando per l'ingresso. A differenza della zona giorno, dove la normativa richiede un antibagno, dalla camera da letto è invece possibile avere un collegamento diretto col bagno.
Potendo modificare la disposizione dei sanitari del bagno, abbiamo spostato il lavabo in modo da rendere comodi entrambi gli accessi. Infine, per facilitare i percorsi, abbiamo sostituito tutte le porte a battente con delle porte scorrevoli.
Altro progetto. Si tratta sempre di un bilocale ed anche qui siamo vincolati a posizionare il bagno vicino alla porta di ingresso all'appartamento per questione di scarichi e di ventola. La zona giorno va invece collocata preferibilmente nella parte opposta rispetto al bagno, dove ci sono due porte-finestre che danno direttamente su un meraviglioso giardino privato.
Fra le soluzioni proposte anche in questo caso i proprietari hanno optato per quella con due porte di accesso al bagno. Avremmo potuto scegliere di evitare le due porte lasciando solamente quella verso l'ingresso e creare una porta di accesso alla camera sempre dall'ingresso.
Comprensibilmente i proprietari hanno preferito non collocare la porta della camera sull'ingresso per più motivi. Innanzitutto quando si entra in una casa è bene avere chiaro dove dirigersi per arrivare alla zona giorno. Infatti la presenza della porta della camera di fronte all'ingresso avrebbe molto probabilmente disorientato l'ospite. Un secondo motivo è dettato da questioni di migliore privacy per la camera ed un terzo da questioni sicurezza, ossia preferivano che nessuno potesse svicolare velocemente in camera entrando in casa.
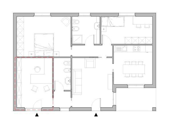
In questa casa abita una coppia con un bimbo in età scolare. La mamma è una libera professionista e svolge la sua attività in casa, dove siamo riusciti a creare un ufficio (evidenziato con un contorno rosso) avente ingresso separato rispetto a quello dell'abitazione.
La soluzione con due ingressi separati dall'esterno funziona perché le persone che hanno rapporti lavorativi con la donna non devono passare in casa per andare in ufficio. Contemporaneamente la donna può avere accesso diretto all'ufficio dalla propria abitazione senza uscire, avendo anche la tranquillità di essere vicina al figlio durante il pomeriggio, quando è a casa da scuola.
Come vedete nella casa sono presenti due bagni, uno per la zona giorno ed un altro per la zona notte. Per entrambi i bagni non è stata adottata la soluzione della doppia porta di accesso, ma vorrei comunque farvi vedere l'esempio per comprendere come la doppia porta di accesso sia utile anche per un antibagno, soprattutto quando quest'ultimo separa funzioni molto diverse come un'abitazione e un ufficio.
Il bagno della zona giorno può essere infatti condiviso con l'ufficio, senza creare particolari problemi di commistione fra le funzioni (residenziale e lavorativa).
|  | 
 
|  | ||||
| Testata Giornalistica online registrata al Tribunale di Napoli n.19 del 30-03-2005 | ||||
| 
		Copyright 2025 © MADEX Editore S.r.l. | ||||