|
Questo è il progetto studiato per una famiglia che vive in un centro storico del nord Italia, in una casa articolata su tre piani: zona giorno a piano terra, zona notte al primo piano e una mansarda al secondo piano.
La mansarda è libera ma da sempre è utilizzata come ripostiglio/soffitta. All'epoca della ristrutturazione completa dell'immobile i due genitori non disponevano di sostanze sufficienti per rifinire tutta la casa.
Non avendo ancora figli, decisero di completare le parti esterne (isolando i muri perimetrali, sostituendo il tetto, i serramenti, ecc.) e di completare le parti interne limitatamente al piano terra e al primo piano, lasciando la mansarda al futuro.
A distanza di anni dalla ristrutturazione della casa, la famiglia si è allargata ed ora è composta da mamma, papà e due figli maschi di 13 anni e 11 anni. I due ragazzi condividono da sempre una cameretta al primo piano, ma la naturale esigenza di avere uno spazio autonomo ha convinto i due genitori a realizzare due nuove camerette in mansarda, una per ogni figlio. Nell'attuale cameretta al primo piano sarà invece sistemato uno spazioso guardaroba per i genitori.
La mansarda si presenta così: un accesso tramite scala interna dal primo piano ed un grande spazio vuoto di 37 mq (superficie che ovviamente non tiene conto di quella occupata dalle scale).
Dalla sezione si notano alcuni elementi importanti ai fini del progetto. Il primo riguarda l'altezza interna utile del locale, che nei punti più bassi è pari a 2,60 m e in corrispondenza del colmo del tetto è pari a 4,40 m. Certamente la si può considerare una risorsa da sfruttare.
Il secondo elemento ben visibile in sezione è la presenza di più elementi finestrati. Ci sono due finestre a parete e due lucernari sul tetto. I due riquadri tratteggiati al centro della pianta corrispondono alle proiezioni a terra dell'ingombro dei lucernari.
Come già accennato, la richiesta principale avanzata dalla famiglia è il progetto di due camerette in mansarda. Per questioni di uguaglianza, le due camerette dovrebbero avere preferibilmente pari metratura. Sempre se possibile, i genitori chiedono anche un bagno e un ripostiglio dove accatastare tutti i giocattoli d'infanzia in disuso.
Si chiede di non modificare muri, tetto e finestre esistenti, visto che già sono stati oggetto di intervento in passato. In pratica l'involucro non va toccato, se non per esigenze di tipo impiantistico, come la realizzazione di una ventola collegata all'esterno per l'areazione del bagno, ecc.
L'altezza notevole della mansarda, soprattutto in corrispondenza del colmo del tetto, potrebbe essere sfruttata così:
Si potrebbero creare due livelli. Al primo livello (corrispondente al piano di calpestio della mansarda attuale) troverebbe posto il bagno, mentre al secondo livello (sopra il bagno) si potrebbero collocare le zone letto per i ragazzi. Nel Comune in cui si trova l'immobile l'altezza interna dei servizi igienici deve essere almeno pari a 2,40 metri, misura indicata anche in sezione.
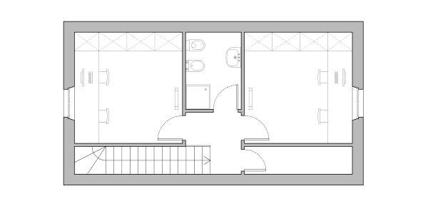
Visti in pianta i due livelli risultano così:
Nella pianta del primo livello riportata qui sopra vediamo che arrivando dalla scala ci si ritrova in un disimpegno. Da qui si può accedere al ripostiglio (l'ambiente lungo e stretto in basso a destra), alle due camerette (con zona studio e armadiatura) e al bagno. Nella pianta del secondo livello, che invece vediamo qui sotto, il bagno non si vede più, ma si vedono i due letti che sono collocati al di sopra della soletta di copertura del bagno.
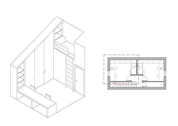
Per capire meglio l'articolazione dei livelli, riporto uno spaccato assonometrico di una delle camerette:
La porta di accesso alla cameretta si trova al primo livello. Entrando c'è uno spazio libero centrale, mentre ai lati trovano posto una grande scrivania (che prende luce dalla finestra) ed un'armadiatura realizzata su misura che segue l'inclinazione del tetto. C'è poi una scala a pioli che porta al secondo livello dove si trova il letto. La famiglia in questione pratica abitualmente arrampicata sportiva e la scala a pioli è stata fortemente voluta dai ragazzi. In alternativa, se si ritiene la scala a pioli poco adeguata, per accedere al secondo livello dove si trova il letto è sempre possibile progettare una scala più comoda munita di parapetto.
|
|
|
|
||||
Testata Giornalistica online registrata al Tribunale di Napoli n.19 del 30-03-2005 | ||||
|
Copyright 2026 © MADEX Editore S.r.l. |
||||